
36.47 acres in Johnson County
$8,500
3455 Farm to Market 731, , TX 76028MLS# 21052594
Data last refreshed: April 2, 2026 at 8:18 AM
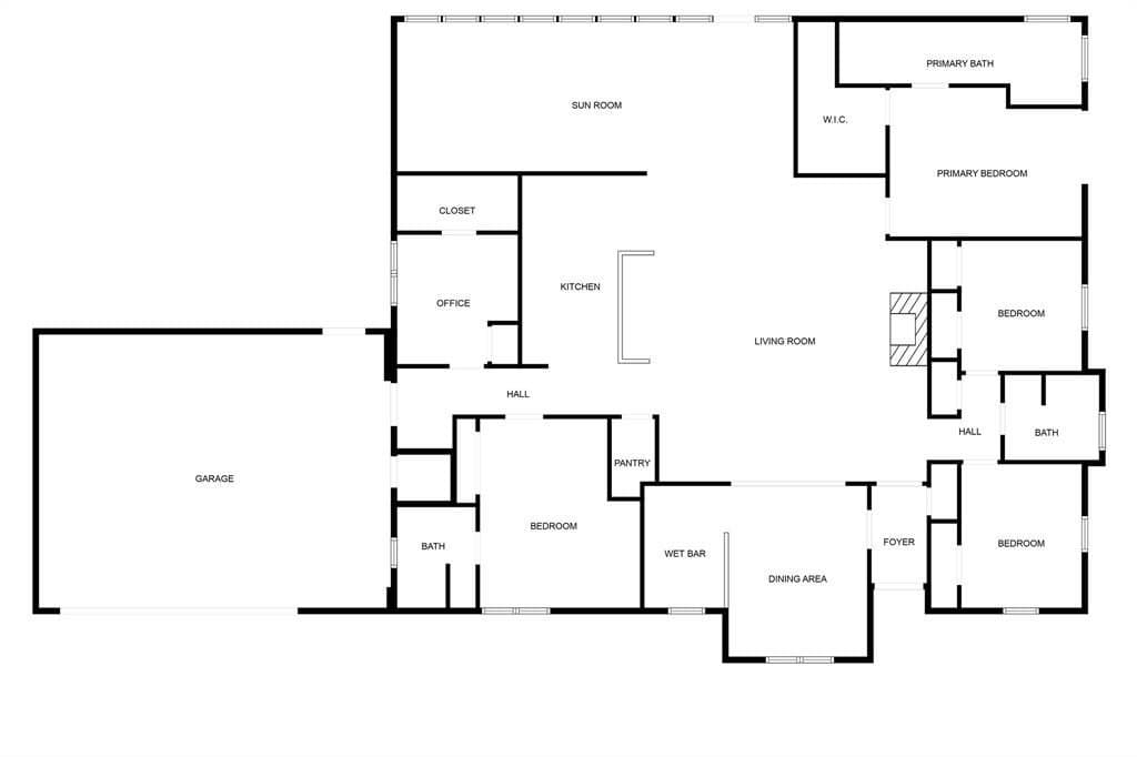
Income producing potential! This multi use property is perfectly set up as a training and-or boarding facility for horses. Outstanding location just outside Burleson and approximately 25 minutes to Will Rogers Coliseum. The property has 2 barns, one with 15 stalls and the other with 10 stalls. The barns also have concrete aisles, tack rooms, offices, wash areas, and storage for hay or bulk shavings. There are multiple pastures that are fenced and cross fenced, a covered arena, outdoor arena, and RV hookups. This property is also ideal for hosting horse-related events as there is plenty of parking for trucks and trailers. The 2930 square foot home features 4 bedrooms and 3 baths, is freshly painted and carpeting was replaced with luxury vinyl flooring. It has a large, open-concept with living room, dining room with bar, kitchen and sunroom. There is an office from which to run your facility operation in the quiet of your home. The primary bedroom is a nice size with French doors that lead to the pool. The second bedroom off of the kitchen has its own en suite. The pool patio area is perfect for entertaining and looks out towards the covered arena. This property is near growing communities and minutes from HEB, Tractor Supply, Home Depot and restaurants making it ideal to attract horse-loving clients looking for the convenient location to enjoy their four legged friends.
Webb Kirkpatrick Real Estate, Inc / Dawn Johnson
Webb Kirkpatrick Real Estate, Inc
Original ListingCopyright © 2026 North Texas Real Estate Information Systems, Inc. All rights reserved. All information provided by the listing agent/broker is deemed reliable but is not guaranteed and should be independently verified.