
0.03 acres in Bexar County
$64,999
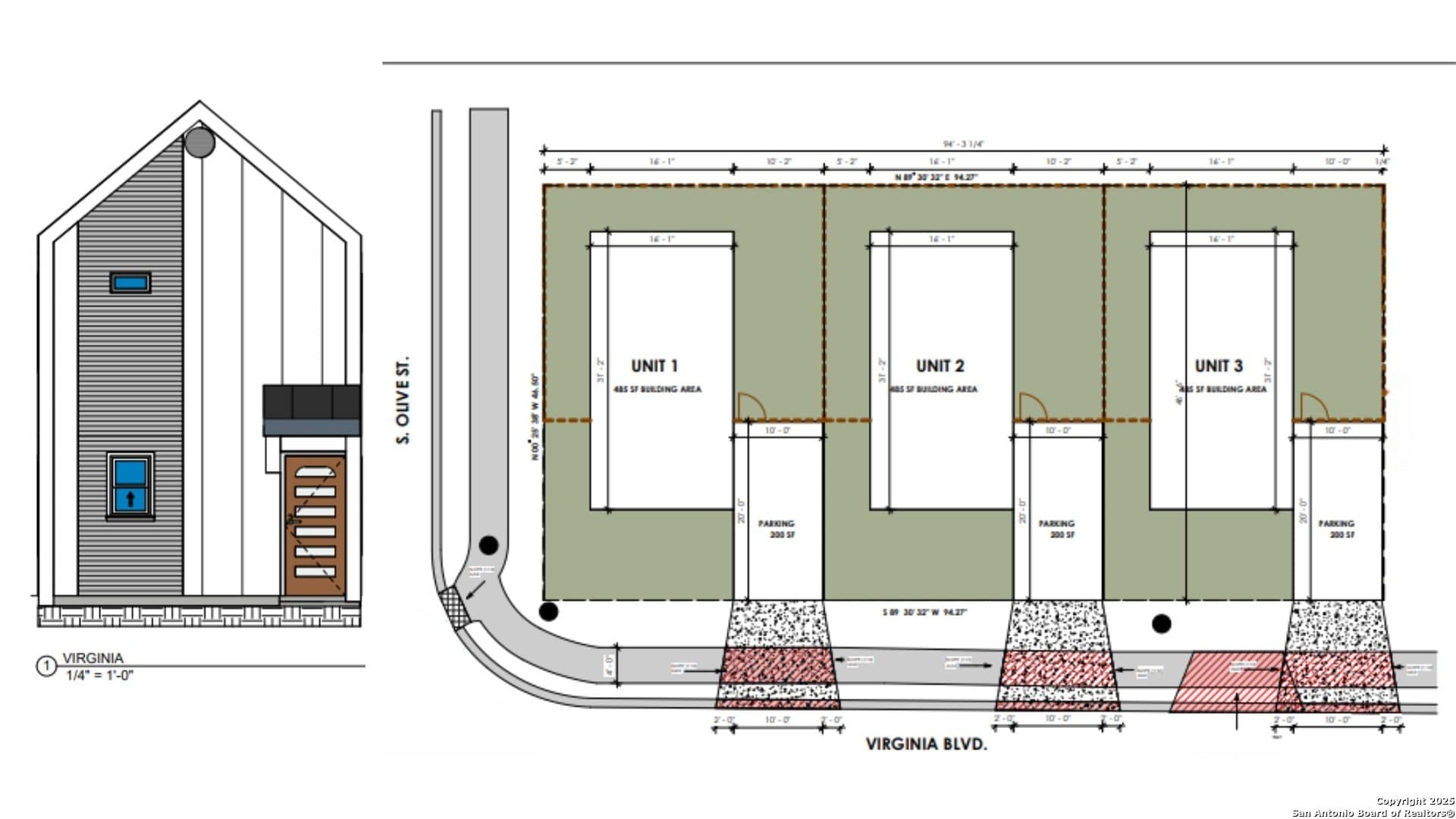
711 Virginia Blvd, , TX 78203
MLS# 1867976
Data last refreshed: April 2, 2026 at 4:18 AM
Unlock the Potential in Denver Heights - Prime Corner Lot and Development Opportunity! Calling all visionary investors and developers! Located just blocks from the iconic Alamodome and seconds from downtown San Antonio, this prime lot offers unmatched opportunity in one of the city's fastest-growing neighborhoods. This area is buzzing with new construction, modern developments, and a surge of trendy shops and eateries popping up around every corner. Denver Heights is already making headlines, and this site is your chance to be at the forefront of its transformation before it takes off even further. Whether you're planning to build the home of your dreams, develop income-generating properties, or take on a residential project, the possibilities are endless. And it gets better-703 and 707 are also available! Offering even more potential to expand your vision. Don't miss your chance to secure a key piece of San Antonio's urban revival. Opportunities like this are rare. Make your move before this corner of the city shines even brighter.
Keller Williams Legacy / Flower Castillo
Keller Williams Legacy
Copyright © 2026 LERA MLS. All rights reserved. All information provided by the listing agent/broker is deemed reliable but is not guaranteed and should be independently verified.